Search

Leave a Message

Thank you for your message. I will be in touch with you shortly.

Explore Properties

Property Description

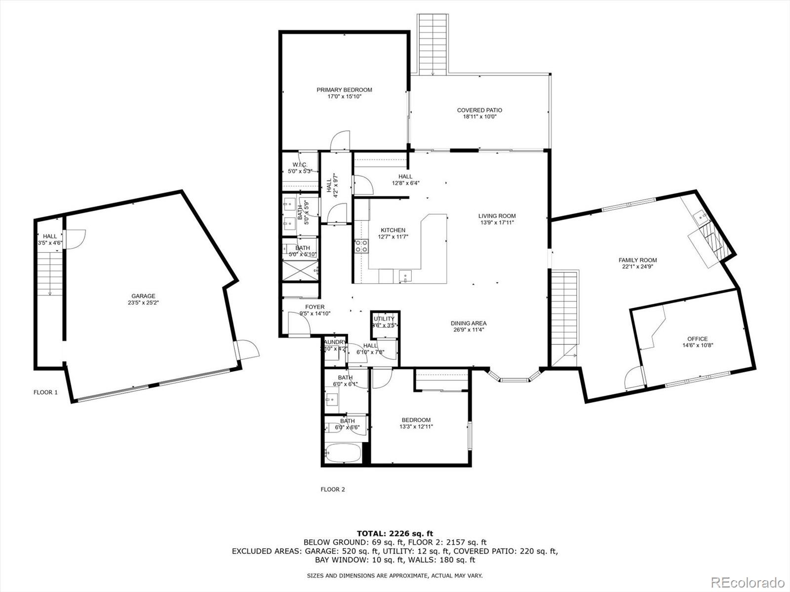
Spacious and remodeled home in amazing Central Denver neighborhood. This quiet location has a Rare 2-Car oversized heated Attached Garage with EV charger. Lock and Leave lifestyle offering over 2,000SqFt of main floor living, this 3-bedroom, 2-bath home (remodeled in 2021) features an open layout flooded with light. Residents enjoy scenic greenbelts, well-maintained common areas, and a quiet, welcoming atmosphere. Minutes away from parks, schools, and all of the popular amenities this Central Denver location is hard to beat. Beautifully remodeled kitchen and bathrooms. Butlers pantry / workspace area, large bedrooms beautifully finished floors and a separate living room area with Gas fireplace and wet bar. Enjoy shady West facing private outdoor spaces, generous storage, in-unit laundry, in addition to the 2-car attached there is another 1-car shared garage and 5 off street reserved parking spaces for added convenience. Whether you're hosting, working remotely, or relaxing in comfort, this home delivers the perfect mix of space, functionality, and location. Competitively priced and full of potential, it's a great opportunity for buyers seeking low maintenance, comfort, community, and long-term investment value in one of Denver's most established neighborhoods. No Metro District to deal with, thoughtfully designed community, well-established location and well cared for property, open space and mature trees - you just don't get this in new construction. Ideally located in the heart of the Denver Tech Center (DTC), enjoy a short distance to restaurants, businesses, shopping, and public trans. HOAs include everything. **This condo is warrantable and approved for FHA and VA loans**

Overview

Property Status
For Sale
MLS ID
7442697
Property Type
Condo
Year Built
1974

Features & Amenities

Total Area
2,200 Sq.Ft.
Architecture Styles
Mid-Century Modern
Stories
1
Garage Spaces
3.0
Water Source
Public
Utilites
Cable Available, Electricity Available, Electricity Connected, Internet Access (Wired), Natural Gas Available
Pool
Outdoor Pool
Roof
Composition
Lot Features
Greenbelt, Landscaped, Near Public Transit, Open Space
Parking
220 Volts, Concrete, Dry Walled, Electric Vehicle Charging Station(s), Heated Garage
Heat Type
Forced Air
Air Conditioning
Central Air
Fireplace
Family Room
Appliances
Convection Oven, Cooktop, Dishwasher, Disposal, Dryer, Microwave, Oven, Range, Refrigerator, Washer
Other Interior Features
Ceiling Fan(s), Open Floorplan, Quartz Counters, Smoke Free, Walk-In Closet(s), Wet Bar
Sewer
Public Sewer
HOA Amenities
Clubhouse, Coin Laundry, Fitness Center, Park, Pool, Tennis Court(s)
Security Features
Carbon Monoxide Detector(s), Smoke Detector(s)
Elementary School
Southmoor
Middle School
Hamilton
High School
Thomas Jefferson
School District
Denver 1
Sales Price
$475,000
Real Estate Tax
$2,385/yr
HOA
$954/mo
Zoning
S-TH-2.5

Downloads

7250 Eastmoor Drive Unit: 223

Schedule a Tour

I would love to show you this beautiful property. Please select your preferred date and time below. I will be in touch shortly to confirm your appointment.

Thank you

for your interest in 7250 Eastmoor Drive Unit: 223, Denver, CO 80237

I'm Interested In

7250 Eastmoor Drive Unit: 223

or
  • CallKristen Mancherian

    License #EA40031972

    (303) 618-8083
  • 7250 Eastmoor Drive Unit: 223
    Navigate
    7250 Eastmoor Drive Unit: 223
    explore in 3d

    Mortgage Calculator

    Estimate your monthly mortgage payment, including the principal and interest, property taxes, and HOA. Adjust the values to generate a more accurate rate.
    $0,000 Your Payment 20 15 65
    $0,000 Your Payment

    Follow Us On Instagram